One Church.
Many Gifts.
United Future.
Images are artist’s impressions based on current plans and are for illustrative purposes only.
Introduction
A new chapter is about to begin for Christ Church Padgate and Church Collective - one church, with many communities, united in Christ - one that will honour our rich history while shaping a vibrant space for worship, community and mission for generations to come.
Our upcoming reordering project is more than a renovation; it is a bold step into the future, creating a building that reflects both our faith in Jesus and our shared vision. With Christ at the centre, we are building more than walls - we are building a future full of life, faith, and service.
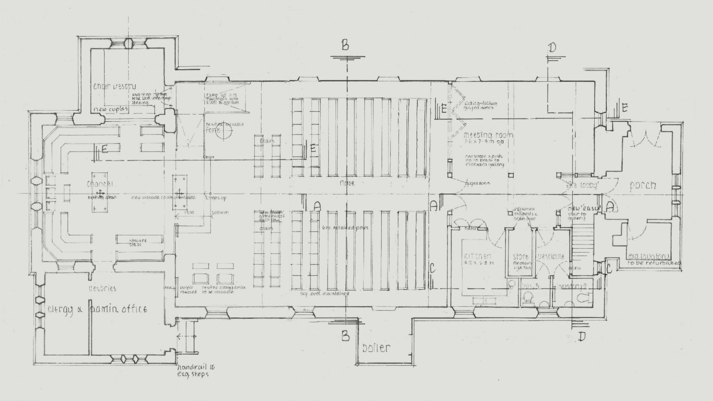
A Building for the Future
-

The Meeting Room (Right Hand Side)
• Double the current space
• Multifunctional, independent space
(sliding doors closed)• Extended space to the nave for additional seating capacity (sliding doors open)
-

The Meeting Room (Left Hand Side)
• Additional toilets
• Potential income stream if we were to rent out the space
• Large kitchen
-

The Nave (Front)
• Bright, newly refurbished space to worship God
• Flexible space, particularly at the front of the nave
-

The Nave (Rear)
• A mixture of pews and chairs, retaining our heritage, whilst providing additional comfort
• Vastly improved audio (with acoustic panels)
-

The Chancel
• Bright, intimate space for worship and reflection
• Reflect upon the stained glass
• Better Visuals
• Everyone, wherever they are in the building, can hear every word!
-

The Youth Loft/Balcony
• Making a dedicated space for young people
• Vastly increased seating potential for our larger services
• Increased storage
• Accessible space for all, due to stair lift
Provisional Costings
• The provisional costs for the total scheme are £850,000.
• We anticipate through legacies already gifted to Christ Church and potential grants we might be able to receive, we will have around £500,000.
• Hence, we believe we need to raise around £350,000 for the full scheme to be achieved.
Ways to Give
-
A single payment and/or monthly payments made payable to Christ Church Padgate PCC.
(When paying by cheque, please put reordering specific cheque donations in an envelope marked ‘Reordering Fund’ so we know where to allocate your gift, thank you.) -
Name of Account:
Christ Church Padgate Parochial Church CouncilSort Code:
20-91-48Account no:
40254088Reference:
Reordering Fund -
Payments can also be made at Give a Little, a verified fundraiser and secure point of donation.
The Reordering Booklet
Physical copies of The Reordering Booklet are available from church, and a digital version is available to view here: